sسوال درباره اتوکد 2010

nilo_nazanin

New Member
سلام بچه ها خوبید
من تو اتوکد 2010 نیاز دارم
1. گرید رو که میزنم ، نقطه های گرید رنگشون یا سایزشون بزرگتر بشه واقعا اذیتم میکنه
2. بتونم گرید به اون اندازه ای که میخوام بزارم مثلا گرید 5*5 یا 10*10 میشه راهنماییم کنین
3. چطور میتونم وقتی میخوام یک چند ضلهی منظم بکشم ، و زاویه رو بوسیله Polar درست میکنم چطور میتونم تمام اضلاع رو هم اندازه در بیارم ؟
سپاسگزارم
 

nilo_nazanin

New Member
سلام همه دوست جونای خودم خوبید
میخواستم بدونم :
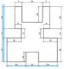
1. این نقاط آبی تو عکسی که گزاشتم رو اتوکد بصورت اتومات میتونه بزاره ؟ یعنی یه شکلی رسم کردیم حالا تنضیماتی بزنم که همه این مختصت رو بده ؟
2. بصورت غیر مستقیم ، یعنی دستی و هرجایی که که میخوایم بهمون بده
ممنون از کمکتون
 

پیوست ها

  • 1dasdad1.jpg
    1dasdad1.jpg
    123.7 کیلوبایت · بازدیدها: 14

mahrooh

New Member
ببخشید شاید جای این سوال من اینجا نباشه ،من تازه عضو سایت شدم و خیلی از چندو چون پست گذاشتنها آگاه نیستم

یک فاید کد دانلود کردم و میخوام توی مکس سه بعدیش کنم اما وقتی فایل رو تو اتوکد باز میکنم میگه :
this file was created by an incompotible version of autocad

برای رفع این مشکل باید چیکار کنم؟
 

Jim Jim

Well-Known Member
روی آیکود گرید در نوار پایین صفحه راست کلیک کن و setting رو بزن و تنظیمات دلحواه رو اعمال کن
 

Jim Jim

Well-Known Member
برای ترسیم چند ضلعی نیاز با polar نیست
از دستور polygon استفاده کنید و وقتی تعداد اضلاع رو مشخص کردید، حرف e رو بزنید و مقدار طول اضلاع رو مشخص کنید
 

Jim Jim

Well-Known Member
قسمت های آبی رنگی که مشخص کردید با دستور اندازه گذاری ایجاد میشه که می تونید با حالت های مختلف و دستی ایجاد کنید
 

Jim Jim

Well-Known Member
ببخشید شاید جای این سوال من اینجا نباشه ،من تازه عضو سایت شدم و خیلی از چندو چون پست گذاشتنها آگاه نیستم

یک فاید کد دانلود کردم و میخوام توی مکس سه بعدیش کنم اما وقتی فایل رو تو اتوکد باز میکنم میگه :
this file was created by an incompotible version of autocad

برای رفع این مشکل باید چیکار کنم؟

فایلتون رو ایجا بذارید تا چک کنیم
اگر کلا باز نمیشه ممکنه با ورژن دیگری که پشتیبانی نمیشه ایجاد شده باشه
 
بالا